Projek Dalam Perancangan
Lokasi Strategik & Matang
Terletak di Indera Mahkota dengan kepadatan penduduk tinggi serta sokongan infrastruktur sedia ada yang lengkap di Indera Mahkota
Aksesibiliti & Rangkaian Jalan Raya Baik
Mudah diakses melalui rangkaian jalan utama dan berhampiran pusat bandar serta kawasan komersial dan institusi penting, menyokong aliran trafik harian yang konsisten.
Pertumbuhan Kediaman & Komuniti Stabil
Dikelilingi kawasan perumahan sedia ada serta pembangunan baharu yang pesat, mewujudkan aliran permintaan yang konsisten terhadap kemudahan komersial, runcit dan perkhidmatan
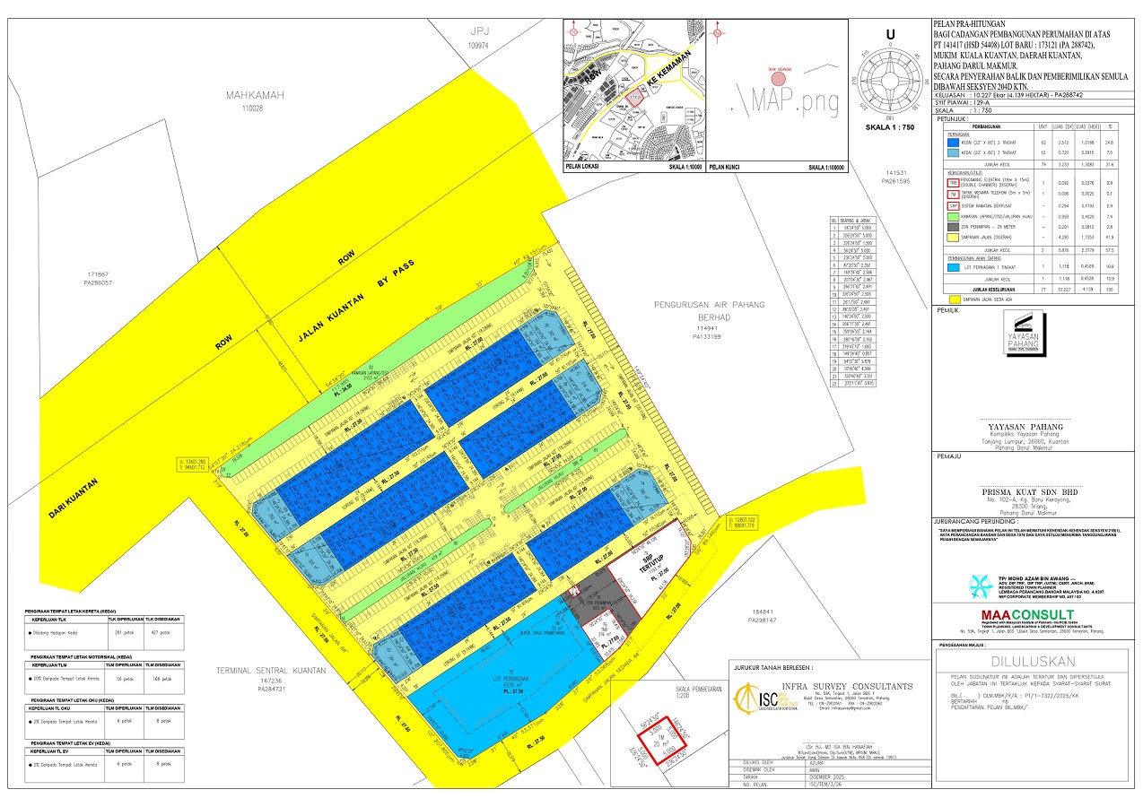
- 62 unit Kedai Pejabat 2 Tingkat
- 12 unit Kedai Pejabat 3 Tingkat
- 1 Lot Perniagaan 1 Tingkat
LOKASI PROJEK
Lokasi Strategik & Berpotensi
Terletak di Batu 3, di sepanjang laluan utama bandar Kuantan yang menghubungkan pusat bandar dengan kawasan sekitarnya, menjadikan lokasi ini mudah diakses dan sentiasa bertrafik tinggi.
Hab Aktiviti & Perdagangan
Kedudukan yang hampir dengan pusat bandar Kuantan serta zon komersial dan perkhidmatan utama menjana aliran pergerakan harian yang konsisten, sekali gus meningkatkan keterlihatan dan kebolehcapaian pembangunan
Sokongan Komuniti Kediaman
Dikelilingi kawasan perumahan matang dan pertumbuhan pembangunan kediaman yang berterusan, lokasi ini menikmati permintaan pasaran yang stabil dan berpanjangan terhadap kemudahan runcit serta perkhidmatan sokongan.
- 64 unit Kedai Pejabat 2 Tingkat
- 6 unit Kedai Pejabat 3 Tingkat
- 1 Lot Perniagaan (Pasaraya) 1 Tingkat
LOKASI PROJEK
Lokasi Strategik & Berpotensi
Terletak di Batu 3, di sepanjang laluan utama bandar Kuantan yang menghubungkan pusat bandar dengan kawasan sekitarnya, menjadikan lokasi ini mudah diakses dan sentiasa bertrafik tinggi.
Hab Aktiviti & Perdagangan
Kedudukan yang hampir dengan pusat bandar Kuantan serta zon komersial dan perkhidmatan utama menjana aliran pergerakan harian yang konsisten, sekali gus meningkatkan keterlihatan dan kebolehcapaian pembangunan
Sokongan Komuniti Kediaman
Dikelilingi kawasan perumahan matang dan pertumbuhan pembangunan kediaman yang berterusan, lokasi ini menikmati permintaan pasaran yang stabil dan berpanjangan terhadap kemudahan runcit serta perkhidmatan sokongan.
- Fasa 1 : 120 unit Rumah Teres 1 Tingkat beserta kemudahan
- Fasa 2 : 52 unit Rumah Teres 1 Tingkat
- Fasa 3 : 40 unit Rumah Teres 2 Tingkat
- Fasa 4 : 34 unit Kedai Pejabat 1 Tingkat beserta tapak jaja
LOKASI PROJEK